Фееричный 126 м2 №937

Цена строительства от 4 900 000 ₽* * Стоимость не является окончательной
Заявка на консультацию
  • Общая площадь 112 м2
  • Материал стен Каркасно-панельные
  • Количество этажей 2
  • Подвал Нет
  • Мансарда без мансарды
  • Гараж Нет
  • Терраса Да
  • Проживание Круглогодичное
  • Количество комнат 5
  • Количество спален 4
  • Количество санузлов 2
  • Вид проекта дом
  • Застройщик МоноЛит
  • Отделка фасада Лицевой кирпич
  • Крыша Двускатная
  • Можно купить домокомплект Да
  • Модульный тип строения Нет
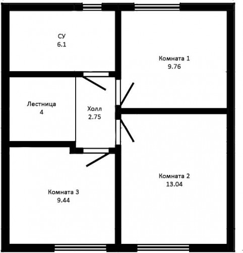
Планировки
Описание проекта

«Фееричный» 126 м2 — Отличается продуманной планировкой: пространства достаточно для комфортной жизни семьи и приёма гостей. Большие окна обеспечивают обилие естественного света и визуально расширяют интерьер.

Внешне дом выглядит стильно и современно: чистые линии, лаконичные формы и продуманные архитектурные акценты создают запоминающийся облик.

Комплектации:

ДОМОКОМПЛЕКТ 1 680 000 р.

СТАНДАРТ 4 900 000 р.

КОМФОРТ 5 800 000 р.

КОМФОРТ+ 7 500 000 р.

Вас может заинтересовать
Вас может заинтересовать

Выбор местоположения

Задать вопрос / написать нам

E-mail: domgis@mail.ru

Мы свяжемся с Вами в течение дня.

Тех. поддержка
Предмет обращения:
Тукущая страница

Мы свяжемся с Вами в течение дня.

Уведомление
Предмет обращения:
Тукущая страница
Обратный звонок
Обратный звонок
Выберите ваш город
Пожаловаться

Объявление опубликовано.
Изменения сохранены

Период публикации - бессрочный, при условии подтверждения актуальности каждые 50 дней. Уведомления будут отправляться на Вашу электронную почту.

Выберите причину снятия с публикации

Снятые с публикации объявления не участвуют в поиске и недоступны для подробного просмотра.

Для повторной публикации нажмите «Вернуть в публикацию»