Уютный 67 м2 №927

Цена строительства от 3 150 000 ₽* * Стоимость не является окончательной
Заявка на консультацию
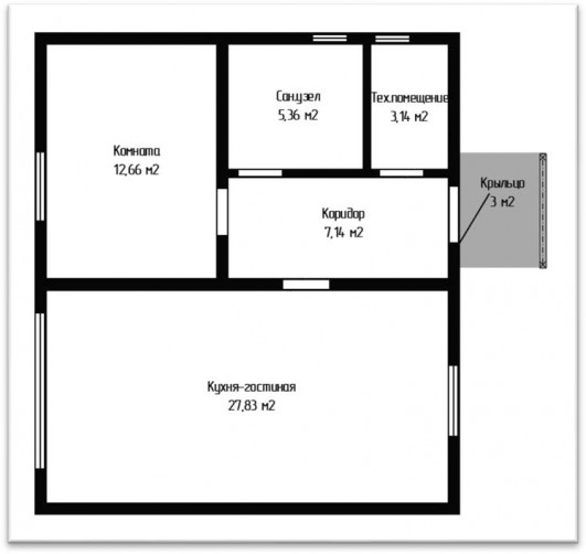
  • Общая площадь 59 м2
  • Материал стен Каркасно-панельные
  • Количество этажей 1
  • Подвал Нет
  • Мансарда без мансарды
  • Гараж Нет
  • Терраса Нет
  • Проживание Круглогодичное
  • Количество комнат 2
  • Количество спален 1
  • Количество санузлов 1
  • Вид проекта дом
  • Застройщик МоноЛит
  • Архитектурный стиль Классический
  • Крыша Двускатная
  • Можно купить домокомплект Да
  • Модульный тип строения Нет
Планировки
Описание проекта

Уютный 66,7 м²- это современное одноэтажное строение, созданное с учетом потребностей небольшой семьи. Проект разработан с акцентом на функциональность и доступность.

Дом создан с учетом современных требований к жилью, обеспечивая комфортное проживание при оптимальном использовании площади.

Комплектации:

ДОМОКОМПЛЕКТ 980 000 р.

СТАНДАРТ 3 150 000 р.

КОМФОРТ 4 500 000 р.

КОМФОРТ+ 5 800 000 р.

Вас может заинтересовать
Вас может заинтересовать

Выбор местоположения

Задать вопрос / написать нам

E-mail: domgis@mail.ru

Мы свяжемся с Вами в течение дня.

Тех. поддержка
Предмет обращения:
Тукущая страница

Мы свяжемся с Вами в течение дня.

Уведомление
Предмет обращения:
Тукущая страница
Обратный звонок
Обратный звонок
Выберите ваш город
Пожаловаться

Объявление опубликовано.
Изменения сохранены

Период публикации - бессрочный, при условии подтверждения актуальности каждые 50 дней. Уведомления будут отправляться на Вашу электронную почту.

Выберите причину снятия с публикации

Снятые с публикации объявления не участвуют в поиске и недоступны для подробного просмотра.

Для повторной публикации нажмите «Вернуть в публикацию»