Нео 86 №216

Цена строительства от 5 860 000 ₽* * Стоимость не является окончательной
Заявка на консультацию
  • Общая площадь 86 м2
  • Длина 11.6 м
  • Ширина 7.5 м
  • Материал стен Кирпич
  • Количество этажей 1
  • Подвал Нет
  • Мансарда без мансарды
  • Гараж Нет
  • Терраса Нет
  • Проживание Круглогодичное
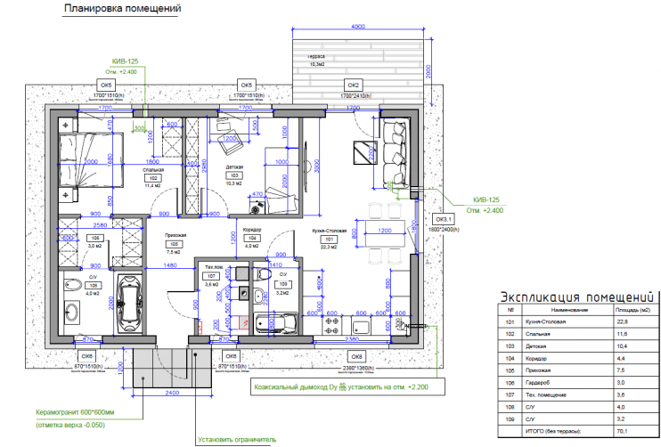
  • Количество комнат 3
  • Количество спален 2
  • Количество санузлов 2
  • Вид проекта дом
  • Застройщик Kodez
  • Архитектурный стиль Современный
  • Отделка фасада Комбинированная
  • Крыша Двускатная
  • Можно купить домокомплект Нет
  • Модульный тип строения Нет
Планировки
Описание проекта

NEO 86 - один из cамых популярных домов в Новосибирске

Он выполнен в современном скандинавском стиле.

Этот стиль олицетворяет гармонию человека с природой и основан на эко-материалах, светлой цветовой палитре и большом количестве света.

Дом подойдёт для молодой семьи с ребёнком.

А ещё, комнату можно переоборудовать под кабинет для уединения и работы дома.

Предусмотрено несколько типов стандартной планировки. Но любую планировку можно поменять специально под Ваши пожелания.

Дом предназначен и для постоянного проживания, и для уютного загородного отдыха.

Дом имеет скатную кровлю, что является оптимальным вариантом для Сибири.

Комплектация "Опти"

ЧТО ВХОДИТ:

  • Фундамент: свайно-ростверковый
  • Стены: кирпич, перегородки –кирпич 120 мм
  • Кровля: из профилированного листа
  • Внешняя отделка фасадов и карнизов: декоративная штукатурка и строганная доска
  • Окна: энергосберегающие, двухкамерный стеклопакет
  • Входная дверь: металлическая с терморазрывом
  • Электрика: разводка к розеткам и выключателям по одной в комнате
  • Отопление: теплый пол во всех помещениях
  • Водоснабжение: разведено по дому
  • Пол: бетонный под черновую отделку
  • Стены внутренние: штукатурка
  • Электрическая котельная: 9 кВт


Вас может заинтересовать
Вас может заинтересовать

Выбор местоположения

Задать вопрос / написать нам

E-mail: domgis@mail.ru

Мы свяжемся с Вами в течение дня.

Тех. поддержка
Предмет обращения:
Тукущая страница

Мы свяжемся с Вами в течение дня.

Обратный звонок
Обратный звонок
Выберите ваш город
Пожаловаться

Объявление опубликовано.
Изменения сохранены

Период публикации - бессрочный, при условии подтверждения актуальности каждые 50 дней. Уведомления будут отправляться на Вашу электронную почту.

Выберите причину снятия с публикации

Снятые с публикации объявления не участвуют в поиске и недоступны для подробного просмотра.

Для повторной публикации нажмите «Вернуть в публикацию»