Продажа: Дом 664 м² + участок 15,5 соток
рабочий посёлок Кольцово, жилой комплекс Берёзки Кольцово, виноградная, 8\1 (городской округ Кольцово)

цена 59 631 000 руб.

№ объекта: 25845

Обновлено: 08.10.2025

  • Отключить автопереход
    карты со схемы на гибрид

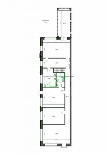
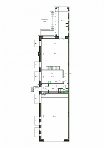
В доме выполнены межкомнатные перегородки, штукатурка, стяжка на всех этажах. Гараж рассчитан на 2 автомобиля. Наружные сети – вода, канализация, электричество, газ –централизованные. Электричество введено в дом с подключением газового котла.
На первом этаже выполнен тёплый пол, радиаторы установлены.
Территория посёлка охраняемая с видеофиксацией на въезде.

  • Общее описание
  • Местоположение
  • Информация об объекте
  • Информация о земле/участке
  • Коммуникации
  • Поселковая инфраструктура
  • Прочее

В доме выполнены межкомнатные перегородки, штукатурка, стяжка на всех этажах. Гараж рассчитан на 2 автомобиля. Наружные сети – вода, канализация, электричество, газ –централизованные. Электричество введено в дом с подключением газового котла.
На первом этаже выполнен тёплый пол, радиаторы установлены.
Территория посёлка охраняемая с видеофиксацией на въезде.

Местоположение

Регион
Новосибирская область
Район региона
городской округ Кольцово
Населенный пункт
рабочий посёлок Кольцово
Микрорайон
жилой комплекс Берёзки Кольцово
Улица
виноградная
Номер дома
8\1
Ориентир
54:19:190102:12939

Информация об объекте

Подтип недвижимости
Таунхаус
Вид строения
Готовое
Площадь объекта (м²)
663.64
Год постройки
2023
Материал дома
Кирпич
Этажность
2
Кол-во жилых помещений
3
Санузел
Внутренний
Терасса
нет
Мебель
нет
Возможность прописки
есть

Информация о земле/участке

Площадь участка
15.53 сот
Категория земель
Земли населенных пунктов
Разрешенное использование
Блокированная жилая застройка.2.3

Коммуникации

Электричество
есть
Водоснабжение
есть
Вид водоснабжения
Круглогодичное
Тип водоснабжения
Центральное
Газоснабжение
Магистральный в доме или на участке
Отопление
Центральное отопление
Канализация
Центральная
Проводной интернет
возможность подключения

Поселковая инфраструктура

Внутрипоселковая дорога
Асфальтированная
Охрана
есть
Проживание
Круглогодичное
Уличное освещение
есть
Общественные внутрипоселковые зоны
Детские площадки, Прогулочная парковая зона

Выбор местоположения

Задать вопрос / написать нам

E-mail: domgis@mail.ru

Мы свяжемся с Вами в течение дня.

Тех. поддержка
Предмет обращения:
Тукущая страница

Мы свяжемся с Вами в течение дня.

Обратный звонок
Обратный звонок
Выберите ваш город
Пожаловаться

Объявление опубликовано.
Изменения сохранены

Период публикации - бессрочный, при условии подтверждения актуальности каждые 50 дней. Уведомления будут отправляться на Вашу электронную почту.

Выберите причину снятия с публикации

Снятые с публикации объявления не участвуют в поиске и недоступны для подробного просмотра.

Для повторной публикации нажмите «Вернуть в публикацию»