Продажа: Дом 151 м² + участок 10,0 соток
товарищество собственников недвижимости Облепиха (Новосибирский район)

цена 12 900 000 руб.

№ объекта: 84306

Обновлено: 02.02.2026

  • Отключить автопереход
    карты со схемы на гибрид

Дом по каркасной технологии с гарантией 5 лет.

Стоимость дома указана без стоимости участка!!!1

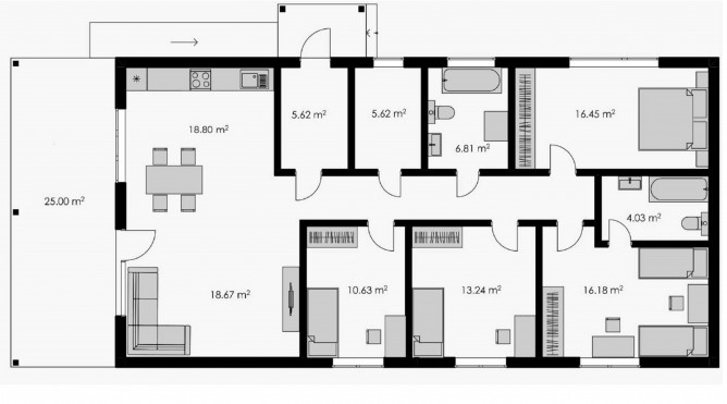
Предлагаемый дом общей площадью 151 квадратный метр — это современное и функциональное жилище, спроектированное с учетом комфорта и практичности.

Главные особенности

- Площадь 151 м² обеспечивает достаточно пространства для комфортного проживания семьи из 3–5 человек.

- Терраса — открытое пространство для отдыха на свежем воздухе, идеально подходит для семейных вечеров, барбекю или утреннего кофе.

- Планировка продумана с акцентом на зонирование: просторная гостиная, удобная кухня, несколько спален и санузлы.

- Энергосбережение: дом может быть оснащен современными системами утепления и энергосберегающими технологиями.

- Строительные материалы и отделка выбираются в зависимости от пожеланий заказчика, обеспечивая долговечность и эстетическую привлекательность.

- Дополнительные опции: возможность строительства под ключ.

Фундамент: ЖБИ сваи - зависит от участка

- Каркас: классика 151,008м2

Фасад: Штукатурный с планкеном или фасадные панели на выбор

Инженерные сети: Электрика, Сантехника разведены по точкам

Отопление: Водяной теплый пол

Стяжка: Полусухая отшлифованная под чистовое покрытие

Канализация: Септик с переливом ЖБИ кольца 9,014 м3

Котел: Электро (сразу для ввода в эксплуатацию)

Водонагревательный бак: 82 л

Покрытие кровли: Металлочерепица

Окна: 5-камерный профиль, кашировка внешняя, цвет на выбор

Крыльцо, подшив карнизов, цоколя, водосточная система, входная дверь с терморазрывом

Перепланировка дома возможна без удорожания. Проект раздел АР бесплатно.

Строим по согласованному проекту

ПВ: Материнский капитал / собственные средства

Эскроу: ДОМ.РФ

Ипотека: ДОМ.РФ, ВТБ, Левобережный, Металлинвест, Дальневосточный, ВБРР, Примсоцбанк

Компания гарантирует выполнение всех этапов строительства профессионально и в срок, обеспечивая качество и надежность вашего будущего дома.

  • Общее описание
  • Местоположение
  • Информация об объекте
  • Информация о земле/участке
  • Коммуникации
  • Поселковая инфраструктура
  • Прочее

Дом по каркасной технологии с гарантией 5 лет.

Стоимость дома указана без стоимости участка!!!1

Предлагаемый дом общей площадью 151 квадратный метр — это современное и функциональное жилище, спроектированное с учетом комфорта и практичности.

Главные особенности

- Площадь 151 м² обеспечивает достаточно пространства для комфортного проживания семьи из 3–5 человек.

- Терраса — открытое пространство для отдыха на свежем воздухе, идеально подходит для семейных вечеров, барбекю или утреннего кофе.

- Планировка продумана с акцентом на зонирование: просторная гостиная, удобная кухня, несколько спален и санузлы.

- Энергосбережение: дом может быть оснащен современными системами утепления и энергосберегающими технологиями.

- Строительные материалы и отделка выбираются в зависимости от пожеланий заказчика, обеспечивая долговечность и эстетическую привлекательность.

- Дополнительные опции: возможность строительства под ключ.

Фундамент: ЖБИ сваи - зависит от участка

- Каркас: классика 151,008м2

Фасад: Штукатурный с планкеном или фасадные панели на выбор

Инженерные сети: Электрика, Сантехника разведены по точкам

Отопление: Водяной теплый пол

Стяжка: Полусухая отшлифованная под чистовое покрытие

Канализация: Септик с переливом ЖБИ кольца 9,014 м3

Котел: Электро (сразу для ввода в эксплуатацию)

Водонагревательный бак: 82 л

Покрытие кровли: Металлочерепица

Окна: 5-камерный профиль, кашировка внешняя, цвет на выбор

Крыльцо, подшив карнизов, цоколя, водосточная система, входная дверь с терморазрывом

Перепланировка дома возможна без удорожания. Проект раздел АР бесплатно.

Строим по согласованному проекту

ПВ: Материнский капитал / собственные средства

Эскроу: ДОМ.РФ

Ипотека: ДОМ.РФ, ВТБ, Левобережный, Металлинвест, Дальневосточный, ВБРР, Примсоцбанк

Компания гарантирует выполнение всех этапов строительства профессионально и в срок, обеспечивая качество и надежность вашего будущего дома.

Местоположение

Регион
Новосибирская область
Район региона
Новосибирский район
Населенный пункт
товарищество собственников недвижимости Облепиха
Муниципальное образование
Станционный сельсовет

Информация об объекте

Подтип недвижимости
Дом/коттедж
Вид строения
Под самоотделку
Площадь объекта (м²)
151.00
Год постройки
2025
Материал дома
Каркасный
Этажность
1
Кол-во жилых помещений
3
Санузел
Внутренний
Терасса
есть
Возможность прописки
есть

Информация о земле/участке

Площадь участка
10.00 сот
Категория земель
Земли населенных пунктов

Коммуникации

Электричество
есть
Водоснабжение
есть
Вид водоснабжения
Круглогодичное
Тип водоснабжения
Скважина
Отопление
Электричество
Канализация
Септик
Проводной интернет
возможность подключения

Поселковая инфраструктура

Проживание
Круглогодичное
Уличное освещение
есть
Общественные внутрипоселковые зоны
Гостевые парковки

Выбор местоположения

Задать вопрос / написать нам

E-mail: domgis@mail.ru

Мы свяжемся с Вами в течение дня.

Тех. поддержка
Предмет обращения:
Тукущая страница

Мы свяжемся с Вами в течение дня.

Уведомление
Предмет обращения:
Тукущая страница
Обратный звонок
Обратный звонок
Выберите ваш город
Пожаловаться

Объявление опубликовано.
Изменения сохранены

Период публикации - бессрочный, при условии подтверждения актуальности каждые 50 дней. Уведомления будут отправляться на Вашу электронную почту.

Выберите причину снятия с публикации

Снятые с публикации объявления не участвуют в поиске и недоступны для подробного просмотра.

Для повторной публикации нажмите «Вернуть в публикацию»