Продажа: Дом 97 м² + участок 6,0 соток
посёлок Октябрьский, микрорайон Рябиновый, 12 (Мошковский район)

цена 8 800 000 руб.

№ объекта: 84777

Обновлено: 28.04.2026

  • Отключить автопереход
    карты со схемы на гибрид

Тепловой контур: 8,8млн.руб. Whitebox +900т.руб.

Возможен обмен на вторичную недвижимость.


Фундамент – свайно-ростверковый с утеплением ЭППС 5см + плита 10см по уплотненному основанию с утеплением ЭППС 10см, залита отмостка по периметру фундамента, выполнено бетонное крыльцо.

Стены (супертеплые) – кирпич 25см + утеплитель (минвата) 15см + штукатурка (короед), элементы декоративной обшивки планкеном.

Потолок (высота 2,9м) – утепленные минвата 20см, холодная неэсплуатируемая мансарда.

Инженерные коммуникации - разводка канализации, трубы теплого пола + коллектор, разводка горячей/холодной воды, 4-канальная вентиляция в кирпичной трубе, септик (бетонные кольца) 4,77м3, подземный завод электрокабеля и водопроводной трубы в дом, электросчетчик, выполнено заземление .

Окна – профиль KBE Expert (5-й камерный), стеклопакет с мультипокрытием 40мм, кэшированные (антрацит),  замкнутое  армирование профиля 2мм, фурнитура MACO.

Крыша – металлопрофиль 0,48мм (антрацит), подшиты софиты.

Дверь –входная 1,5мм термодверь Мегатрон (антрацит).

  • Общее описание
  • Местоположение
  • Информация об объекте
  • Информация о земле/участке
  • Коммуникации
  • Поселковая инфраструктура
  • Прочее

Тепловой контур: 8,8млн.руб. Whitebox +900т.руб.

Возможен обмен на вторичную недвижимость.


Фундамент – свайно-ростверковый с утеплением ЭППС 5см + плита 10см по уплотненному основанию с утеплением ЭППС 10см, залита отмостка по периметру фундамента, выполнено бетонное крыльцо.

Стены (супертеплые) – кирпич 25см + утеплитель (минвата) 15см + штукатурка (короед), элементы декоративной обшивки планкеном.

Потолок (высота 2,9м) – утепленные минвата 20см, холодная неэсплуатируемая мансарда.

Инженерные коммуникации - разводка канализации, трубы теплого пола + коллектор, разводка горячей/холодной воды, 4-канальная вентиляция в кирпичной трубе, септик (бетонные кольца) 4,77м3, подземный завод электрокабеля и водопроводной трубы в дом, электросчетчик, выполнено заземление .

Окна – профиль KBE Expert (5-й камерный), стеклопакет с мультипокрытием 40мм, кэшированные (антрацит),  замкнутое  армирование профиля 2мм, фурнитура MACO.

Крыша – металлопрофиль 0,48мм (антрацит), подшиты софиты.

Дверь –входная 1,5мм термодверь Мегатрон (антрацит).

Местоположение

Регион
Новосибирская область
Район региона
Мошковский район
Населенный пункт
посёлок Октябрьский
Микрорайон
микрорайон Рябиновый
Номер дома
12
Ориентир
п. Октябрьский, ст. Мочище

Информация об объекте

Подтип недвижимости
Дом/коттедж
Вид строения
Под самоотделку
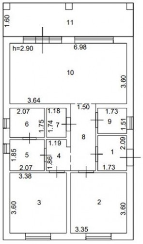
Площадь объекта (м²)
97.20
Год постройки
2025
Материал дома
Кирпич
Этажность
1
Кол-во жилых помещений
2
Санузел
Внутренний

Информация о земле/участке

Площадь участка
6.00 сот
Категория земель
Земли населенных пунктов
Разрешенное использование
ижс

Коммуникации

Электричество
есть
Водоснабжение
есть
Вид водоснабжения
Круглогодичное
Тип водоснабжения
Центральное
Газоснабжение
Магистральный в доме или на участке
Канализация
Септик
Проводной интернет
возможность подключения

Поселковая инфраструктура

Внутрипоселковая дорога
Щебеночная
Охрана
есть
Проживание
Круглогодичное
Уличное освещение
есть

Выбор местоположения

Задать вопрос / написать нам

E-mail: domgis@mail.ru

Мы свяжемся с Вами в течение дня.

Тех. поддержка
Предмет обращения:
Тукущая страница

Мы свяжемся с Вами в течение дня.

Уведомление
Предмет обращения:
Тукущая страница
Обратный звонок
Обратный звонок
Выберите ваш город
Пожаловаться

Объявление опубликовано.
Изменения сохранены

Период публикации - бессрочный, при условии подтверждения актуальности каждые 50 дней. Уведомления будут отправляться на Вашу электронную почту.

Выберите причину снятия с публикации

Снятые с публикации объявления не участвуют в поиске и недоступны для подробного просмотра.

Для повторной публикации нажмите «Вернуть в публикацию»