Продажа: Дом 88 м² + участок 12,0 соток
ДНТ Рябинка, Кленовая, 13 (Новосибирский район)

цена 9 450 000 руб.

№ объекта: 85114

Обновлено: 02.02.2026

  • Отключить автопереход
    карты со схемы на гибрид


Наслаждайтесь жизнью за городом в вашем новом доме!

Предлагаем вам уникальную возможность приобрести стильный дом площадью 88 кв.м всовременном коттеджном поселке на участке 12 соток. Этот дом станет идеальным местом для взрослой пары, чьи дети выросли и уехали, позволяя вам насладиться жизнью вдали от городской суеты.

Уютная атмосфера и прекрасные виды создадут идеальные условия для отдыха и комфортного проживания влади от шума мегаполиса. 

Основные характеристики:

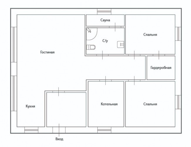
* Две спальни с французскими окнами, создающими атмосферу уюта и света.

* Два санузла, обеспечивающие комфорт и удобство.

* Просторная кухня-гостиная высотой 5 метров с выходом на большую террасу 24м и большими панорамными окнами — идеальное пространство для спокойных вечеров или встреч с друзьями и родными.

* Теплый пол по всей площади, включая зоны около окон, чтобы вы всегда чувствовали себя комфортно.

* Участок 12 соток - вы сможете воплотить любой ландшафт вашей мечты: от сада до уютной зоны барбекю среди зелёных сосен.

* Центральные коммуникации.

* Строительство дома велось под проф контролем на каждом этапе - вы оцените качество и надёжность по достоинству. 

Дополнительные преимущества:

* Ванная комната с естественным освещением благодаря окну

* Центральное водоснабжение

* Электричество

* Возможность подключения газа (газ по границе участка) 

* Современный электрокотел с дистанционным управлением и бойлер для вашего удобства

* Пятикамерные окна обеспечивают отличную тепло- и звукоизоляцию.

Дом продается в чистовой отделке, что дает вам возможность оформить его по своему вкусу и создать пространство, где вы будете чувствовать себя по-настоящему дома. 

Не упустите возможность начать новую главу вашей жизни в этом прекрасном доме! 

Звоните нам для получения дополнительной информации и организации просмотра.

  • Общее описание
  • Местоположение
  • Информация об объекте
  • Информация о земле/участке
  • Коммуникации
  • Поселковая инфраструктура
  • Прочее


Наслаждайтесь жизнью за городом в вашем новом доме!

Предлагаем вам уникальную возможность приобрести стильный дом площадью 88 кв.м всовременном коттеджном поселке на участке 12 соток. Этот дом станет идеальным местом для взрослой пары, чьи дети выросли и уехали, позволяя вам насладиться жизнью вдали от городской суеты.

Уютная атмосфера и прекрасные виды создадут идеальные условия для отдыха и комфортного проживания влади от шума мегаполиса. 

Основные характеристики:

* Две спальни с французскими окнами, создающими атмосферу уюта и света.

* Два санузла, обеспечивающие комфорт и удобство.

* Просторная кухня-гостиная высотой 5 метров с выходом на большую террасу 24м и большими панорамными окнами — идеальное пространство для спокойных вечеров или встреч с друзьями и родными.

* Теплый пол по всей площади, включая зоны около окон, чтобы вы всегда чувствовали себя комфортно.

* Участок 12 соток - вы сможете воплотить любой ландшафт вашей мечты: от сада до уютной зоны барбекю среди зелёных сосен.

* Центральные коммуникации.

* Строительство дома велось под проф контролем на каждом этапе - вы оцените качество и надёжность по достоинству. 

Дополнительные преимущества:

* Ванная комната с естественным освещением благодаря окну

* Центральное водоснабжение

* Электричество

* Возможность подключения газа (газ по границе участка) 

* Современный электрокотел с дистанционным управлением и бойлер для вашего удобства

* Пятикамерные окна обеспечивают отличную тепло- и звукоизоляцию.

Дом продается в чистовой отделке, что дает вам возможность оформить его по своему вкусу и создать пространство, где вы будете чувствовать себя по-настоящему дома. 

Не упустите возможность начать новую главу вашей жизни в этом прекрасном доме! 

Звоните нам для получения дополнительной информации и организации просмотра.

Местоположение

Регион
Новосибирская область
Район региона
Новосибирский район
Населенный пункт
ДНТ Рябинка
Муниципальное образование
Плотниковский сельсовет
Направление
Ленинск-Кузнецкое шоссе (Раздольное - Плотниково) и Каменское шоссе (Восход - Каменка)
Улица
Кленовая
Номер дома
13
Ориентир
Не доезжая с. Плотниково.

Информация об объекте

Подтип недвижимости
Дом/коттедж
Вид строения
Под самоотделку
Площадь объекта (м²)
88.00
Год постройки
2024
Материал дома
Каркасный
Этажность
1
Кол-во жилых помещений
2
Санузел
Внутренний
Терасса
есть
Мебель
нет
Возможность прописки
есть

Информация о земле/участке

Площадь участка
12.00 сот
Категория земель
Земли сельхоз назначения
Разрешенное использование
ДНТ

Коммуникации

Электричество
есть
Водоснабжение
есть
Вид водоснабжения
Круглогодичное
Тип водоснабжения
Центральное
Газоснабжение
Магистральный по границе участка
Отопление
Центральное отопление
Канализация
Септик
Проводной интернет
возможность подключения

Поселковая инфраструктура

Внутрипоселковая дорога
Щебеночная
Охрана
есть
Проживание
Круглогодичное
Уличное освещение
есть
Общественные внутрипоселковые зоны
Гостевые парковки, Детские площадки, Прогулочная парковая зона

Прочее

Поставлен на кадастровый учет
да
Кадастровый паспорт с установленными границами
да

Выбор местоположения

Задать вопрос / написать нам

E-mail: domgis@mail.ru

Мы свяжемся с Вами в течение дня.

Тех. поддержка
Предмет обращения:
Тукущая страница

Мы свяжемся с Вами в течение дня.

Уведомление
Предмет обращения:
Тукущая страница
Обратный звонок
Обратный звонок
Выберите ваш город
Пожаловаться

Объявление опубликовано.
Изменения сохранены

Период публикации - бессрочный, при условии подтверждения актуальности каждые 50 дней. Уведомления будут отправляться на Вашу электронную почту.

Выберите причину снятия с публикации

Снятые с публикации объявления не участвуют в поиске и недоступны для подробного просмотра.

Для повторной публикации нажмите «Вернуть в публикацию»