Продажа: Дом 134 м² + участок 6,0 соток
микрорайон Гармония, 16-я, 42 (Новосибирский район)

цена 10 000 000 руб.

№ объекта: 85892

Обновлено: 17.02.2026

  • Отключить автопереход
    карты со схемы на гибрид


Продам отличный качественно построенный дом!

Строили для себя, поэтому и к качеству строительства вопросов нет и быть не может!

Даже в самый морозный день, в доме при минимальных настройках котла - тепло!


Кратко о доме:


Фундамент - плита УШП, материал стен Сибит (газобетон) 400 мм ( плотность D500), отопление газовый котел + электрокотел (резервный), теплый пол.

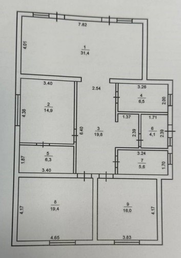
Планировка: кухня гостиная, 2 отдельных комнаты и мастер спальня, в каждой комнате установлены 5-тикамерные стеклопакеты, наружная отделка церезит, отмостка есть! Дом удачно расположен, в нем всегда будет светло и уютно!

Дом просторный - 134 м2, одноэтажный, а это означает, что он идеально подойдет для проживания как молодой семье, так и покупателям старшего поколения!

Коммуникации: электричество, водопровод заведены в дом и оплачены, септик местный. Газ проходит по границе участка, необходимо только завести в дом (стоимость подключения всего от 45 т.р.!!!!), так как котел уже установлен!

Строительство дороги - оплачено!

В настоящее время можно смело заходить на ремонт и воплощать свою мечту об идеальном доме в реальность!


Обратите внимание на локацию, которая стремительно развивается школа, новый детский сад и другие блага цивилизации и городской инфраструктуры рядом! Всё, что необходимо для комфортного проживания, в доступе, при этом сельская прописка, низкие тарифы на электроэнергию, газ и водоснабжение!

Собственник взрослый, никаких обременений и других нюансов, чистая продажа!

  • Общее описание
  • Местоположение
  • Информация об объекте
  • Информация о земле/участке
  • Коммуникации
  • Поселковая инфраструктура
  • Прочее


Продам отличный качественно построенный дом!

Строили для себя, поэтому и к качеству строительства вопросов нет и быть не может!

Даже в самый морозный день, в доме при минимальных настройках котла - тепло!


Кратко о доме:


Фундамент - плита УШП, материал стен Сибит (газобетон) 400 мм ( плотность D500), отопление газовый котел + электрокотел (резервный), теплый пол.

Планировка: кухня гостиная, 2 отдельных комнаты и мастер спальня, в каждой комнате установлены 5-тикамерные стеклопакеты, наружная отделка церезит, отмостка есть! Дом удачно расположен, в нем всегда будет светло и уютно!

Дом просторный - 134 м2, одноэтажный, а это означает, что он идеально подойдет для проживания как молодой семье, так и покупателям старшего поколения!

Коммуникации: электричество, водопровод заведены в дом и оплачены, септик местный. Газ проходит по границе участка, необходимо только завести в дом (стоимость подключения всего от 45 т.р.!!!!), так как котел уже установлен!

Строительство дороги - оплачено!

В настоящее время можно смело заходить на ремонт и воплощать свою мечту об идеальном доме в реальность!


Обратите внимание на локацию, которая стремительно развивается школа, новый детский сад и другие блага цивилизации и городской инфраструктуры рядом! Всё, что необходимо для комфортного проживания, в доступе, при этом сельская прописка, низкие тарифы на электроэнергию, газ и водоснабжение!

Собственник взрослый, никаких обременений и других нюансов, чистая продажа!

Местоположение

Регион
Новосибирская область
Район региона
Новосибирский район
Населенный пункт
микрорайон Гармония
Муниципальное образование
Каменский сельсовет
Улица
16-я
Номер дома
42

Информация об объекте

Подтип недвижимости
Дом/коттедж
Вид строения
Готовое
Площадь объекта (м²)
134.00
Год постройки
2023
Материал дома
Газобетон
Этажность
1
Кол-во жилых помещений
3
Санузел
Внутренний
Терасса
есть
Мебель
нет
Возможность прописки
есть

Информация о земле/участке

Площадь участка
6.00 сот
Категория земель
Земли сельхоз назначения
Разрешенное использование
Для дачного строительства

Коммуникации

Электричество
есть
Водоснабжение
есть
Вид водоснабжения
Круглогодичное
Тип водоснабжения
Центральное
Газоснабжение
Магистральный по границе участка
Отопление
Электричество
Канализация
Септик
Проводной интернет
есть

Поселковая инфраструктура

Внутрипоселковая дорога
Асфальтированная
Проживание
Круглогодичное
Уличное освещение
есть
Общественные внутрипоселковые зоны
Гостевые парковки, Детские площадки

Прочее

Поставлен на кадастровый учет
да

Выбор местоположения

Задать вопрос / написать нам

E-mail: domgis@mail.ru

Мы свяжемся с Вами в течение дня.

Тех. поддержка
Предмет обращения:
Тукущая страница

Мы свяжемся с Вами в течение дня.

Уведомление
Предмет обращения:
Тукущая страница
Обратный звонок
Обратный звонок
Выберите ваш город
Пожаловаться

Объявление опубликовано.
Изменения сохранены

Период публикации - бессрочный, при условии подтверждения актуальности каждые 50 дней. Уведомления будут отправляться на Вашу электронную почту.

Выберите причину снятия с публикации

Снятые с публикации объявления не участвуют в поиске и недоступны для подробного просмотра.

Для повторной публикации нажмите «Вернуть в публикацию»